Sign In or Create a Free Account to see full details of this property
Key Facts
Key facts for 81 Innisfil Street
Property Type
Apartment, 2-Storey
Parking
None 0 garage, 6 parking
MLS #
S12358947
Size
3500-5000 sqft
Basement
Full,Separate Entrance
Listed on
2025-08-22
Lot size
66 x 165.0
Tax
$9,726.99 /yr
Days on Market
65
Approximate Age
100+
Maintenance Fee
-
Description
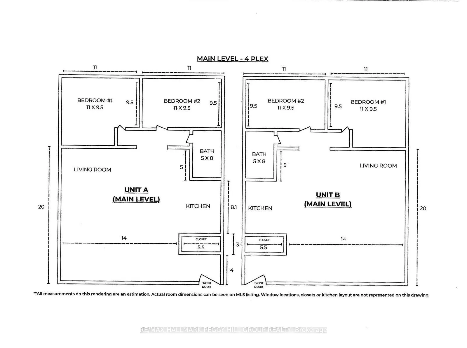
UNBEATABLE INVESTMENT OPPORTUNITY IN BARRIES LAKESHORE DISTRICT - RARE LEGAL MULTIPLEX WITH RELIABLE CASH FLOW & STRONG FUTURE GROWTH POTENTIAL! Outstanding opportunity to acquire a legal income-generating multiplex in one of Barries most coveted Lakeshore locations, just steps from Kempenfelt Bay a...nd Centennial Beach. Within walking distance of restaurants, shopping, parks, and Barries vibrant downtown core filled with entertainment, community events, and waterfront activities, this property truly delivers on lifestyle and convenience. The location also offers excellent connectivity with quick access to the Allandale Waterfront GO Station, local transit routes, and Highway 400. The main front unit features a charming covered porch, a generous yard, a bright, open eat-in kitchen and living room, three upper-level bedrooms, and a full bath. Comfort is assured with forced-air heating and central air conditioning. Behind it, the rear fourplex offers four well-designed units, each with an eat-in kitchen, open living space, two bedrooms, and a full bath, all heated with electric baseboards. With an extended driveway providing ample parking, separate entrances and utility metres, individual storage for every unit, and all kitchen appliances included, this versatile property generates reliable income with plenty of potential for upgrades and future growth. Properties of this scale and in such a prime location are rarely available - secure this exceptional investment today and reap the rewards for years to come!
Similar Properties(No results)
Mortgage Calculator
Calculate your estimated monthly mortgage payment
Price
$1,199,000
$
%
%
Total cost of mortgage
$0
Monthly payment
By clicking Save, we will calculate your estimated mortgage for all properties using the saved values (down payment percentage, interest rate, and amortization).
The accuracy and applicability of this calculator are not guaranteed.