Free account required
10
Free account required
$1,299,000 List $1,299,000 Expired
Sold on: 422 days ago
81 Innisfil Street
· 9+2
· 6
· 6
· 3500-5000
Listing History
Buy/Sell/Terminated/Expired listing history for 81 Innisfil Street
Key Facts
Key facts for 81 Innisfil Street
Property Type
Apartment, 2-Storey
Parking
None 0 garage, 6 parking
MLS #
S8175170
Size
3500-5000 sqft
Basement
Full,Finished
Listed on
2024-03-26
Lot size
66 x 165.0
Tax
$8,898 /yr
Days on Market
579
Approximate Age
100+
Maintenance Fee
-
Description
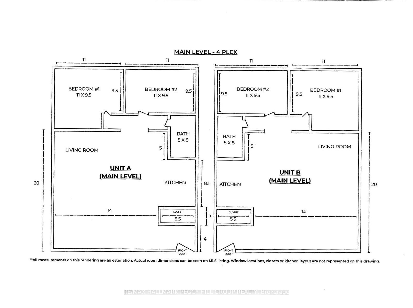
ATTENTION INVESTORS! 5-PLEX IN IDEAL LOCATION WITH EXCELLENT INCOME POTENTIAL! Welcome to 81 Innisfil Street. Discover an exceptional investment opportunity in this 5-plex property strategically located near the Go Station & bus routes, ensuring tenant convenience. Walk to pubs, downtown & the water...front for urban charm & scenic beauty. Easy access to Highway 400 enhances connectivity, opening doors to endless possibilities. Unit 1, the Main House, features a charming brick facade, 3 bedrooms & one bath over two floors, a gas furnace, A/C & private laundry facilities. A bonus unit offers an office/bachelor-style layout & a private bathroom, ripe for imaginative investors. Units A,B,C & D offer four identical 2-bedroom, 1-bathroom apartments with electric heat & tenants cover their own hydro costs. The basement hosts a communal coin laundry facility with separate meters & ample storage, with the potential for individual lockers. Abundant parking spaces enhance the building.
Similar Properties (No results)
Courtesy of: RE/MAX HALLMARK PEGGY HILL GROUP REALTY